ルクスビル

78.43万円 (0.88万円/坪)

管理/共益費 98,032円~141,427円

大阪府東大阪市川俣1丁目1-41

おおさか東線「高井田中央」駅徒歩1分

地下鉄中央線「高井田」駅徒歩1分

価格
78.43万円(0.88万円/坪) 管理/共益費 98,032円~141,427円
面積
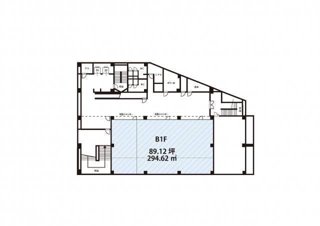
89.12坪~128.57坪(294.62㎡~425.04㎡)
所在地
大阪府東大阪市川俣1丁目1-41
築年
1991年7月(築34年)
駐車
-
交通

おおさか東線高井田中央」駅 徒歩1分

地下鉄中央線高井田」駅 徒歩1分

ルクスビルの基本情報

物件名
ルクスビル
価格
78.43万円(0.88万円/坪)
管理/共益費
98,032円~141,427円
築年月
1991年7月(築34年)
所在地
大阪府東大阪市川俣1丁目1-41
交通

おおさか東線高井田中央」駅 徒歩1分

地下鉄中央線高井田」駅 徒歩1分

ルクスビルの詳細情報

設備条件
  • エレベーター
駐車場/月額
-/-
取引態様
仲介

ルクスビルで募集中の物件

  1. 地下2階

    128.57坪 (425.04㎡)

    113.15万円(0.88万円/坪)

  2. 地下1階

    89.12坪 (294.62㎡)

    78.43万円(0.88万円/坪)

よく見られている物件

  1. 神戸市中央区三宮町1丁目

    - (192.33㎡)

    147.84万円

  2. 京都市伏見区両替町14丁目

    - (68.85㎡)

    25.3万円

  3. 千代田区神田神保町2丁目

    - (30.22㎡)

    12.76万円

  4. 狭山市富士見2丁目

    - (758.56㎡)

    99万円

ルクスビル

お気軽にお問い合わせください

無料お問い合わせ

株式会社BAデザインオフィス

078-391-4774

9:00-17:00

(休: 土日祝日・年末年始)